不動産賃貸・売買
株式会社アベニュー

2路線2駅利用可◇3階建のシェアハウス

売出し物件

update: 2026.04.14

船橋市二宮2丁目シェアハウス
その他

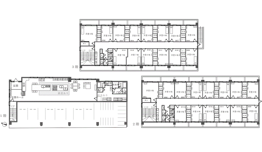
Floor
見取り図

Outline
物件概要

物件名
船橋市二宮2丁目シェアハウス
所在地
千葉県船橋市二宮2-34-2(地図
交通
▷京成松戸線「薬園台」駅より徒歩10分                ▷東葉高速鉄道「飯山満」駅より徒歩17分
接道状況
北側幅員約6.3m市道・東側幅員約4m私道
築年月
1990年9月
構造
鉄筋コンクリート造陸屋根3階建
総戸数
28戸
間取り
2階:洋室6帖13室・洋室9帖1室         3階:洋室6帖11室・洋室7帖2室・洋室9帖1室
土地面積
599.16㎡
建物面積
1階140.91㎡ 2階240.71㎡ 3階240.71㎡    延べ622.33㎡
建ぺい率・容積率
60%・200%
土地権利
所有権
都市計画
市街化区域
他の法令上の制限
第一種高度地区20m・建築基準法22条区域・景観計画区域・宅地造成等工事規制区域・がけ条例
用途地域
第一種中高層住居専用地域
本体・各戸設備
1階:共用LDK・ランドリーコーナー・浴室✖2・トイレ✖2・洗面台                  2・3階:シャワー 脱衣所✖2・トイレ✖2・洗面台・共用流し台                     オートロック・宅配ボックス・駐車スペース
現況
空室
引渡日
即時
引渡条件
現況渡し
価格
10,000万円
売出し物件一覧へ

Contact
お問い合わせ

ご依頼やご相談など、弊社への
お問い合わせはこちらから
TEL 03-5370-2621 ※平日9:00 - 18:00