羽村市羽加美1丁目 売戸建
戸建
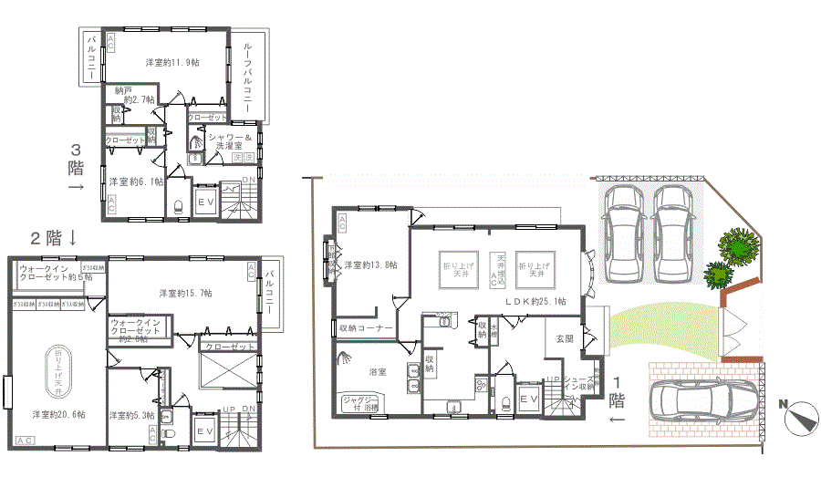
Floor
見取り図

Outline
物件概要
- 物件名
- 羽村市羽加美1丁目 売戸建
- 所在地
- 東京都羽村市羽加美1-34-4(地図)
- 交通
- JR青梅線「羽村」駅より徒歩17分
- 築年月
- 2019年8月
- 構造
- 木造合金メッキ鋼板ぶき
- 間取り
- 6LDK
- 土地面積
- 283.00㎡
- 建物面積
- 1階 115.43㎡ 2階 104.17㎡ 3階 61.17㎡ 延床面積 280.77㎡
- 建ぺい率・容積率
- 60%・200%
- 土地権利
- 所有権
- 都市計画
- 市街化区域
- 他の法令上の制限
- 準防火地域・日影規制(3h-2h/4m)・第1種高度地区・羽ケ上地区地区計画区域(住宅地区)
- 用途地域
- 第一種中高層住居専用地域
- 現況
- 空室
- 引渡日
- 即時
- 価格
- 9,980万円